Trong bối cảnh thị trường bất động sản nghỉ dưỡng tại Việt Nam đang chứng kiến sự trỗi dậy mạnh mẽ, Vinpearl Phú Quý Nha Trang, một kiệt tác đến từ Vingroup, nổi bật như một biểu tượng mới của dòng sản phẩm đô thị biển sang trọng. Nằm ở vị trí đắc địa bên bờ vịnh Nha Trang, một trong những vịnh biển đẹp nhất thế giới, Vinpearl Phú Quý không chỉ là một nơi an cư lý tưởng mà còn là một kênh đầu tư bền vững cho tương lai.
Thông tin chi tiết về dự án:
- Tên dự án: Khu nhà ở Vinpearl Phú Quý
- Vị trí: Phường Nha Trang, tỉnh Khánh Hòa
- Chủ đầu tư: Tập đoàn Vingroup
- Tổng diện tích: 33,8 ha, bao gồm:
- Diện tích đất: Khoảng 18,25 ha
- Diện tích mặt nước biển: Khoảng 15,55 ha
- Quy mô: Biệt thự nghỉ dưỡng, nhà phố liền kề, căn hộ cao cấp, nhà ở xã hội
- Tổng vốn đầu tư: 7.453 tỷ đồng
- Pháp lý: Dự án Khu Nhà Ở Vinpearl Phú Quý đã được UBND tỉnh Khánh Hòa phê duyệt Đồ án Quy hoạch chi tiết (tỷ lệ 1/500) tại Quyết định số 2180/QĐ-UBND, ngày 15/9/2023
Với quy mô khép kín, dự án nổi bật với vẻ đẹp nghệ thuật và sự kết hợp tinh tế giữa công năng nghỉ dưỡng và giải trí.
Sự xuất hiện của Vinpearl Phú Quý Nha Trang như một siêu phẩm làm bừng sáng thị trường, khẳng định vị thế thương hiệu đẳng cấp, tiên phong trong lĩnh vực bất động sản nghỉ dưỡng – du lịch cao cấp tại thành phố biển Nha Trang.
Lấy cảm hứng từ biển cả, màu xanh ngọc bích của biển Nha Trang và những nét đẹp văn hóa bản địa, Vinpearl Phú Quý hứa hẹn mang đến những đặc trưng riêng biệt của Vinpearl, đồng thời tôn vinh những giá trị văn hóa hòa quyện cùng vẻ đẹp tự nhiên của vùng đất này.
1. Vị trí vàng – Kết nối khu vực hoàn hảo:
Vinpearl Phú Quý tựa như viên ngọc quý tọa lạc trên trục đường Trần Phú kéo dài – con đường biển nhộn nhịp và đẳng cấp nhất của TP. Nha Trang. Nằm liền kề Khu Đô Thị Biển An Viên, thuộc phường Nha Trang, tỉnh Khánh Hòa, dự án sở hữu tiềm năng vô giá nhờ hạ tầng giao thông đồng bộ và cảnh quan thiên nhiên tuyệt mỹ, với bãi biển trải dài và thế tựa sơn hướng thủy.
Ranh giới cụ thể của dự án:
- Phía Đông: Tiếp giáp trực tiếp biển Nha Trang, sở hữu bờ biển dài với bãi tắm riêng tư.
- Phía Tây: Kết nối thuận tiện với các tuyến đường huyết mạch Trần Phú và Võ Thị Sáu.
- Phía Nam: Kề cận khu đô thị An Viên – nơi quy tụ cộng đồng cư dân thượng lưu.
- Phía Bắc: Gần kề khu vực Cảng Nha Trang – đang được định hướng phát triển thành cảng du lịch quốc tế.
vinpearl phú quý tổng thể
Vị trí chiến lược này mang đến khả năng kết nối vô cùng thuận tiện đến trung tâm thành phố, Cảng hàng không quốc tế Cam Ranh và các điểm du lịch nổi tiếng như Hòn Tre, khu vui chơi VinWonders, Đảo Yến, Tháp Bà Ponagar…
Thêm vào đó, Vinpearl Phú Quý còn sở hữu liên kết vùng hoàn hảo, chỉ cách TP. Hồ Chí Minh hơn 4 giờ di chuyển bằng ô tô và nằm trong tam giác du lịch trọng điểm: Nha Trang – Đà Lạt – Phú Yên. Nhờ đó, cư dân và du khách có thể dễ dàng khám phá vô vàn danh lam thắng cảnh nổi tiếng trong và ngoài tỉnh.
2. Tổng quan về Quy mô dự án Vinpearl Phú Quý Nha Trang:
Dự án Vinpearl Phú Quý được kiến thiết một cách tỉ mỉ, tạo nên một quần thể đô thị nghỉ dưỡng kết hợp thương mại, dịch vụ và khách sạn cao cấp. Mục tiêu là kiến tạo nên một trung tâm du lịch mới, sôi động ở khu vực phía Đông Nam của thành phố.
– Diện tích tổng thể: Khoảng 33,8 ha, bao gồm: 18,25 ha diện tích đất và 15,55 ha diện tích mặt nước biển. Trong đó:
- Khu nhà ở: Bao gồm các loại hình như nhà phố, biệt thự đơn lập và biệt thự tứ lập, tất cả đều được thiết kế theo phong cách hiện đại và sang trọng.
- Đất công cộng: Gồm khu vực thương mại và khu giáo dục (trường mầm non).
- Công viên cây xanh: Tạo ra một không gian sống xanh mát, gần gũi với thiên nhiên.
- Hạ tầng kỹ thuật: Được đầu tư một cách đồng bộ và hiện đại, mang đến sự tiện nghi tối đa cho cư dân.
– Số lượng dân cư dự kiến: Khoảng 2.720 người.
– Tổng vốn đầu tư: Lên đến 7.453 tỷ đồng.
Bảng chi tiết quy hoạch sử dụng đất Khu nhà ở Vinpearl Phú Quý:
| TT | Chức năng sử dụng | Diện tích (m2) | Tỷ lệ (%) | Chỉ tiêu (m2/người) | Dân Số (người / trẻ) |
|---|---|---|---|---|---|
| I | ĐẤT DÂN DỤNG | 245.190,70 | 72,54 | 2.720 | |
| A | ĐẤT NHÓM NHÀ Ở | 76.140,61 | 22,53 | 28,00 | 2.720 |
| 1 | Đất nhóm ở | 67.610,38 | 20,00 | 24,90 | 2.720 |
| 1.1. | Đất nhóm nhà ở xã hội | 10.309,68 | 3,05 | 939 | |
| 1.2. | Đất nhóm nhà ở – thấp tầng | 57.300,70 | 12,15 | 1.781 | |
| 1.2.1. | Đất nhà ở liên kế | 29.816,12 | 8,82 | 1.400 | |
| 1.2.2. | Đất nhà ở biệt thự tứ lập | 6.897,44 | 2,04 | 308 | |
| 1.2.3. | Đất nhà ở biệt thự | 4.352,83 | 1,29 | 73 | |
| 1.2.4. | Đất giao thông nhóm ở | 16.234,31 | 4,80 | ||
| 2. | Đất công cộng – dịch vụ nhóm nhà ở | 5.803,83 | 1,72 | 2,10 | |
| 2.1. | Đất công cộng – dịch vụ | 3.373,60 | 1,00 | 1,20 | |
| 2.2. | Đất giáo dục (mầm non) | 2.430,23 | 0,72 | 0,90 | 136 |
| 3. | Đất cây xanh nhóm nhà ở | 2.726,40 | 0,81 | 1,00 | |
| B. | ĐẤT NGOÀI NHÓM NHÀ Ở | 169.050,09 | 50,01 | ||
| 1. | Đất thương mại dịch vụ | 46.003,60 | 13,61 | ||
| 2. | Đất cây xanh công viên | 31.562,15 | 9,34 | ||
| 3. | Đất bãi đỗ xe, hạ tầng kỹ thuật | 32.569,23 | 9,64 | ||
| 3.1. | Đất bãi đỗ xe | 30.497,01 | 9,02 | ||
| 3.2. | Đất hạ tầng kỹ thuật khác | 2.072,22 | 0,61 | ||
| 4. | Đất giao thông | 58.915,11 | 17,43 | ||
| II. | ĐẤT NGOÀI DÂN DỤNG | 92.816,47 | 27,46 | ||
| 1 | Đất cây xanh cảnh quan | 11.964,08 | 3,54 | ||
| 2. | Đất dịch vụ du lịch | 72.407,00 | 21,42 | ||
| 2.1. | Đất công trình dịch vụ du lịch | 59.016,74 | 17,46 | ||
| 2.2. | Đất cây xanh | 519,37 | 0,15 | ||
| 2.3. | Đất giao thông | 12.870,89 | 3,81 | ||
| 3. | Đất bãi tắm, khu dịch vụ vui chơi giải trí | 8.445,39 | 2,50 | ||
| TỔNG RANH GIỚI LẬP QUY HOẠCH | 338.007,17 | 100 |
2. Tổng quan quy mô dự án Vinpearl Phú Quý Nha Trang:
Bản đồ quy hoạch tổng mặt bằng sử dụng đất
3. Tiến độ triển khai:
- Giai đoạn từ 2/2023 – 2/2024: Hoàn tất các thủ tục về quy hoạch, môi trường, đất đai, hồ sơ thiết kế, phòng cháy chữa cháy, giải phóng mặt bằng và xin cấp phép xây dựng.
- Quý II/2024: Khởi công giai đoạn lấn biển và xây dựng cơ sở hạ tầng.
- Quý IV/2024: Bắt đầu xây dựng các hạng mục công trình chính.
- Dự kiến Quý II/2026: Hoàn thành và chính thức vận hành toàn bộ dự án.
4. Định hướng phát triển:
- Phát triển khu nhà ở kết hợp dịch vụ du lịch, khách sạn và thương mại dịch vụ đạt tiêu chuẩn quốc tế, trước mắt phục vụ cho các khu du lịch ven biển, đảo lân cận, kết hợp với cảng Nha Trang để trở thành một trung tâm đô thị du lịch và khu vực cảng đầu mối du lịch biển, đảm bảo phù hợp với định hướng chiến lược và cấu trúc phát triển chung của thành phố.
- Xác định quy mô hoạt động của hệ thống các cơ sở lưu trú du lịch trong khu vực và kinh nghiệm quản lý, phát triển thực tế của Chủ đầu tư để đề xuất chức năng sử dụng đất cụ thể, quy mô, loại hình hoạt động, v.v… đối với khu vực dịch vụ du lịch nhằm đảm bảo mục tiêu phát triển bền vững.
- Xây dựng khu quy hoạch mới hiện đại, đồng bộ, đảm bảo định hướng phát triển trong tương lai về hạ tầng kỹ thuật và hạ tầng xã hội, khai thác quỹ đất hợp lý, tăng hiệu quả sử dụng đất, đảm bảo tỷ lệ xây dựng, không gây ảnh hưởng đến môi trường biển.
- Tổ chức và định hướng xây dựng hệ thống hạ tầng kỹ thuật khu quy hoạch mới, đồng bộ, hiện đại và tương đồng với hệ thống hạ tầng kỹ thuật khu vực lân cận, chủ yếu trên đường Trần Phú và khu vực lân cận; đảm bảo tính khả thi và kết nối hạ tầng với các khu vực lân cận.
- Tổ chức không gian kiến trúc, cảnh quan hài hoà với khu vực ven biển và các dự án lân cận, đóng góp vào cảnh quan kiến trúc đô thị ven biển, cảnh quan dọc trục đường Trần Phú, đồng thời phải có hình thái đặc trưng riêng kết hợp với văn hoá bản địa. Xây dựng định hướng quản lý kiến trúc cảnh quan cho từng khu vực.
Thiết kế đô thị, phối cảnh minh họa
5. Tổ chức giao thông:
- Đường Võ Thị Sáu hiện tại có chỉ giới đường đỏ là 15,0m.
- Giao thông nội khu: Hệ thống giao thông bên trong khu quy hoạch bao gồm các tuyến đường cấp khu vực và các tuyến đường nội bộ được thiết kế đồng bộ, đảm bảo khả năng kết nối và tiếp cận thuận tiện, bao gồm:
- Các tuyến đường cấp khu vực:
- Đường D1 có chỉ giới đường đỏ là 23,0m.
- Đường N2 có chỉ giới đường đỏ là 23,0m.
- Đường N1 có chỉ giới đường đỏ là 21,25m.
- Các tuyến đường nội bộ:
- Các đường N3, N4, N7, D2, D3, D5, V1, V2, V3, V4, V5, V6, V7, V8, V9, V10, V11, V12 có chỉ giới đường đỏ là 15,0m
- Đường N5 có chỉ giới đường đỏ là 9,0m.
- Đối với đường nội bộ có tốc độ thiết kế 20km/h, bán kính bó vỉa tối thiểu đạt Rmin = 8m.
- Đối với các đường gom, đường chính đô thị thì bán kính bó vỉa tối thiểu đạt Rmin = 12m.
- Các tuyến đường cấp khu vực:

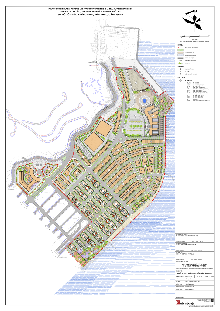
Sơ đồ tổ chức không gian, kiến trúc, cảnh quan
6. Thiết kế cảnh quan:
Hệ thống cây xanh trong khu đô thị có các vai trò quan trọng sau:
- Cải thiện vi khí hậu trong các khu dân cư.
- Liên kết với cây xanh của các hộ dân, tạo thành một hệ thống cây xanh thống nhất.
- Cung cấp không gian sinh hoạt cộng đồng, thư giãn và giải trí cho cư dân sau giờ làm việc.
- Cây xanh cách ly được trồng dọc theo các trục đường, có chức năng ngăn chặn các nguồn ô nhiễm như ô nhiễm không khí, khói bụi phát sinh từ hoạt động sinh hoạt của cư dân.
- Cây xanh đường phố: Được chủ đầu tư trồng, quản lý, chăm sóc và khai thác.
- Ngoài ra, dự kiến trồng cây xanh ven đường trên tất cả vỉa hè của các trục giao thông chính để tạo thành một hệ thống cây xanh hoàn chỉnh.
- Hệ thống cây xanh đường phố cần được nghiên cứu và bố trí hợp lý, phù hợp với chức năng của từng khu vực như: cây xanh tập trung, cây xanh cách ly, cây xanh tạo vi tiểu khí hậu và tuân thủ các tiêu chuẩn hiện hành.

Thiết kế đô thị – Hệ thống cây xanh mặt nước
7. Các tiện ích nổi bật:
Dự án được định vị là khu đô thị nghỉ dưỡng 5 sao, cung cấp đầy đủ tiện ích như một “thành phố thu nhỏ”:
- Hồ bơi vô cực với tầm nhìn trực diện ra biển.
- Công viên cây xanh, đường đi bộ dọc bờ biển.
- Trung tâm thương mại với nhiều thương hiệu nổi tiếng.
- Trường mầm non đạt chuẩn quốc tế, khu sinh hoạt cộng đồng.
- Khu vui chơi giải trí, nhà hàng, quán café trong khu vực nội khu, spa chăm sóc sức khỏe.
- Hệ thống an ninh 24/7, vận hành theo tiêu chuẩn cao cấp.
8. Giá trị tiềm năng của Vinpearl Phú Quý Nha Trang:
Sở hữu bất động sản tại Vinpearl Phú Quý không chỉ là khẳng định vị thế với một không gian sống hoàn mỹ mà còn là cơ hội đầu tư sinh lời đầy hấp dẫn nhờ:
- Sự phục hồi mạnh mẽ và tăng trưởng du lịch vượt bậc của Nha Trang sau thời kỳ dịch bệnh.
- Hệ thống hạ tầng giao thông kết nối các vùng đang được đầu tư và phát triển: đường cao tốc Bắc – Nam, nâng cấp sân bay quốc tế Cam Ranh, cảng biển du lịch Nha Trang, đường cao tốc Nha Trang – Đà Lạt, đường cao tốc Nha Trang – Buôn Mê Thuột,…
- Giá trị của các bất động sản ven biển luôn có xu hướng gia tăng do nguồn cung hạn chế và nhu cầu thị trường lớn.
- Uy tín và kinh nghiệm quản lý, vận hành của Vingroup và Vinpearl là sự đảm bảo cho giá trị lâu dài của dự án.
Vinpearl Phú Quý không chỉ là một dự án nhà đất thông thường, mà còn là biểu tượng của phong cách sống thượng lưu – nơi hội tụ những giá trị nghỉ dưỡng đẳng cấp, tiềm năng đầu tư bền vững và kiến tạo một cộng đồng cư dân ưu tú. Trong tương lai không xa, nơi đây hứa hẹn trở thành một điểm đến mang tính biểu tượng mới của ngành du lịch và nghỉ dưỡng cao cấp tại thành phố biển Nha Trang.























































